



VIVIENDA EN CIUDAD VIEJA
LUGAR: C/ SANTA MARIA, 3, A CORUÑA
PROYECTO DE EJECUCIÓN: 2002
FECHA DE CONSTRUCCIÓN: 2004
CONTRATISTA: Construcciones Saguitar, S.L
ESTRUCTURAS: José Andújar
SUPERFICIE: 216,94 m²
Los clientes me encargan el Proyecto de las obras de rehabilitación del edificio situado en la calle Santa María nº 3 en A Coruña. La finalidad de la rehabilitación es adecuar el citado inmueble a vivienda unifamiliar de los propios promotores, dejando un local comercial en planta baja. Finalmente, el espacio para local comercial se integró en la vivienda, situando ahí la cocina y comedor.
El edificio objeto de rehabilitación se encuentra en la confluencia de las calles Santa María y Sinagoga, con fachada a ambas calles. Es uno de los edificios catalogados dentro del fichero de unidades edificatorias del Plan Especial de Protección y Reforma Interior de la Ciudad Vieja y Pescadería de A Coruña.
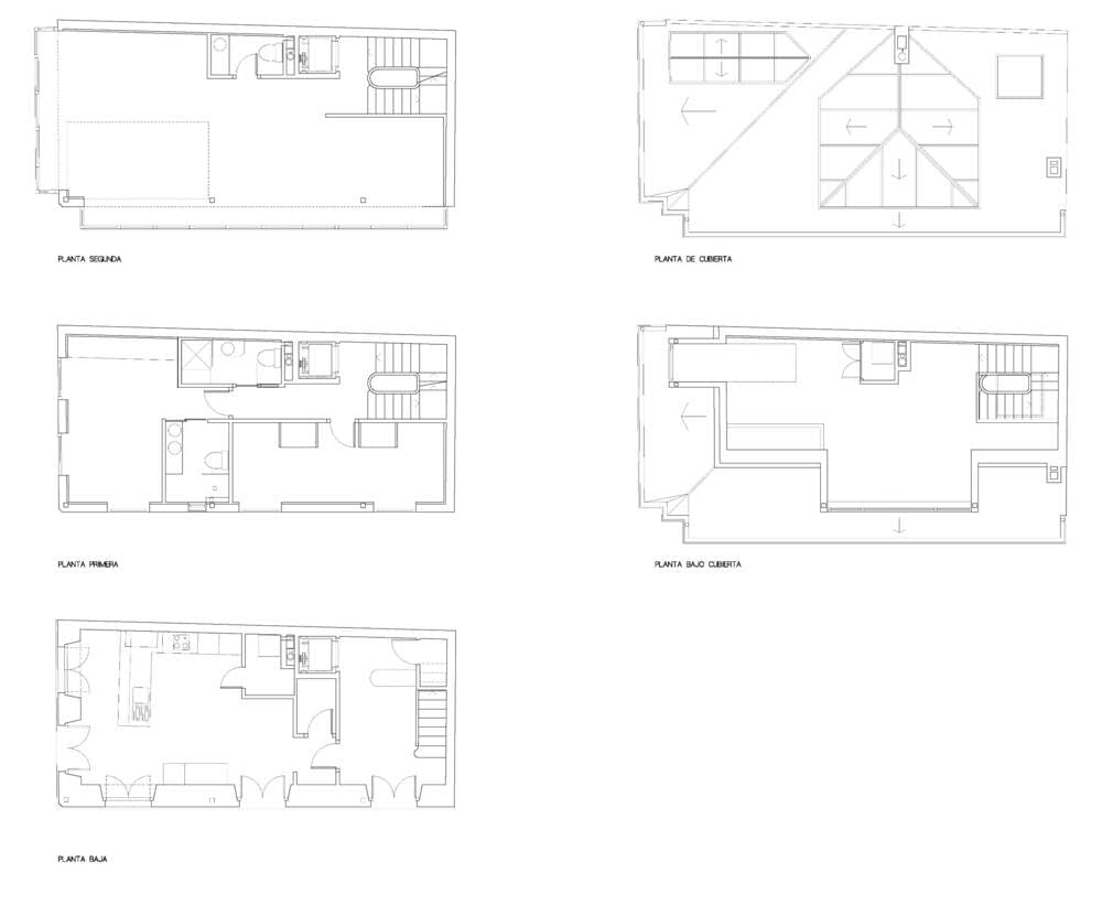
Consta de planta baja, dos plantas altas y bajo cubierta. En la planta baja, con acceso por la calle Santa María, se encuentra el portal, de dimensiones mínimas. El resto de la superficie está destinada a local comercial. En la planta primera hay una vivienda con cocina-estar-comedor, un baño y dos dormitorios. En la planta segunda se distribuye otra vivienda con cocina, baño, estar-comedor, dos dormitorios interiores y otro exterior. El bajocubierta cuenta con una buhardilla y tiene acceso independiente desde la escalera general del inmueble.
En la ficha figura como autor D. Juan Ciorraga, y su fecha de construcción el año 1901. Lo más destacable de la composición es el tratamiento de la carpintería, recurriendo a huecos de gran tamaño en la planta primera, con ventanas de guillotina, y galerías en la planta segunda, una por cada fachada.
La solución adoptada consiste en destinar la planta segunda y el bajo cubierta a zona de día y la planta primera a zona de noche.
La galería de madera que ocupa las dos fachadas, fue totalmente rehecha, siguiendo el modelo original. Otorga carácter al edificio e ilumina una zona de estar en la planta segunda, que se deja diáfana. Esta planta se conecta espacialmente con el bajo cubierta, a través de un hueco en el forjado de éste.
El bajocubierta se plantea como un lugar de trabajo, diáfano, y con las dos buhardillas rehabilitadas.