REHABILITACION INTEGRAL COLEGIO MAYOR AROSA
LUGAR: Calle do Hórreo. Santiago
de Compostela (A Coruña)
PROYECTO DE EJECUCIÓN: 2020
FECHA DE CONSTRUCCION: 2022
CONTRATISTA: Alpanide, S.L.
ESTRUCTURAS: José Andújar
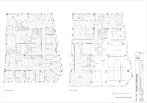
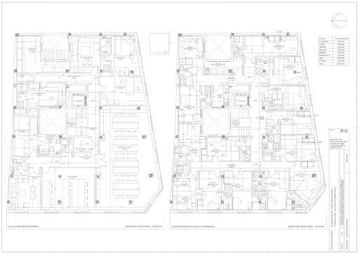
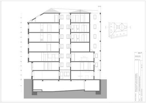
SUPERFICIE: 2.280,72 m2
PROMOTOR: Colegio Mayor Arosa












