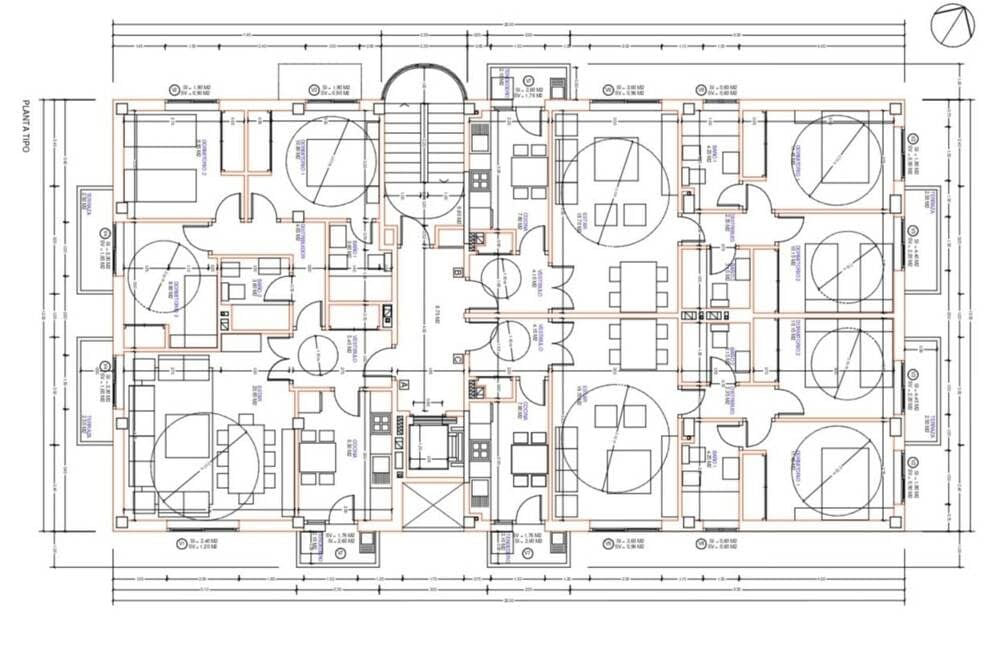
CONJUNTO RESIDENCIAL FONTECULLER
16 VIVIENDAS Y GARAJES
FECHA DE CONSTRUCCION: 2008
CONTRATISTA: Mogar Forte, S.L
ESTRUCTURAS: José Andújar
SUPERFICIE: 2.241,25 m2
PROMOTOR: Pedravixia S.A
LUGAR: FONTECULLER – Culleredo (A Coruña).
PROYECTO DE EJECUCIÓN: 2004







