CONSOLIDACIÓN EXTERIOR DE VIVIENDA TRADICIONAL
LUGAR: RUA FONTE DA ESTRELA Polígono 503 Parcela 971 VEIGA DO ESPIÑO 7, TEO
PROYECTO DE EJECUCIÓN: 2019
FECHA DE CONSTRUCCION: 2020
CONTRATISTA: ALPANIDE CONSTRUCTORA
SUPERFICIE: 591,80 m2
PROMOTOR: Privado
Esta vivienda tradicional está incluida, con el Nº en Plano: B04, en el catálogo de Bienes culturales del Plan Xeral de Ordenación Municipal del Concello de Teo, aprobado definitivamente el 5 de julio de 2010 y publicado en el BOP de La Coruña el día 20 de Julio de2010. Está situado dentro del sector SUD-6 (Suelo Urbanizable Delimitado) aún sin desarrollar mediante un Plan Parcial.
El objeto del proyecto de consolidación consiste en actuar en la envolvente del edificio, como primera Fase del proyecto total de rehabilitación. El objetivo último es que el edificio vuelva a presentarse limpio, con su aspecto tradicional y ajustado al nuevo uso que se le dará que siempre irá al encuentro de los usos y espacios existentes.
En esta primera Fase, no se trata de innovar, sino más bien de consolidar la envolvente: reparar los revocos de los muros, renovar las carpinterías de los huecos y la galería, acondicionar los nuevos faldones de cubierta, para que se logre la seguridad estructural, la protección frente al agua, el control acústico y el ahorro de energía, tal como lo demanda el CTE para toda rehabilitación.
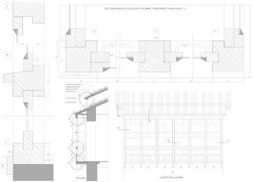
La justificación de la renovación tanto de las carpinterías de huecos exteriores como de la galería viene recogida en el Anexo 1, en el que se documenta el estado de dichas carpinterías, que – si bien están irrecuperables desde el punto de vista funcional- aún nos permite su replicación.
Por decisión expresa de la Propiedad, se deja para una segunda Fase la rehabilitación interior, una vez que se asegure la pertinencia del programa funcional a las normativas oficiales y exista la capacidad financiera para acometer las obras interiores.









