Templo de San Juan Apostol y Evangelista

TEMPLO DE SAN JUAN APOSTOL Y EVANGELISTA 

LUGAR: Polígono de Vite, Santiago de Compostela

PROYECTO DE EJECUCIÓN: 1994

FECHA DE CONSTRUCCION: 1997

CONTRATISTA: ALEA Construcciones

ESTRUCTURAS: José Andújar

SUPERFICIE: 1.925,00 m2

PROMOTOR: Arzobispado de Santiago

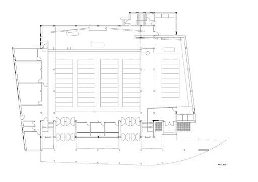
El volumen del Templo se compone de un gran espacio cerrado, a dos alturas, de proporciones apaisadas, con un presbiterio peraltado, por cuya cubierta entrará la luz principal. Flanqueando este espacio se sitúan la Capilla del Santísimo a la derecha, y los locales parroquiales a la izquierda. Un coro en forma de «U» cierra el espacio de la nave, a media altura.

Bajo la capilla se sitúa en semisótano el Salón de Actos, con acceso directo desde el exterior. La propia configuración del espacio, sus líneas generadoras y especialmente el tratamiento de luz natural, darán las claves para conseguir el “espacio religioso” que se busca.

Si los elementos litúrgicos están bien concebidos, situados allí donde la funcionalidad lo exige, y el espacio que los contiene resulta de las dimensiones y calidad convenientes, entonces están perfectamente sentadas las bases del Templo que se pretende lograr.