REHABILITACION PABELLONES DOCENTES COLEGIO PEÑARREDONDA
LUGAR: Calle Ginebra – Lugar de Peñarredonda (A Coruña)
PROYECTO DE EJECUCIÓN: 2013
FECHA DE CONSTRUCCION: 2016
CONTRATISTA: Ogmios Proyectos, S.L.
ESTRUCTURAS: José Andújar
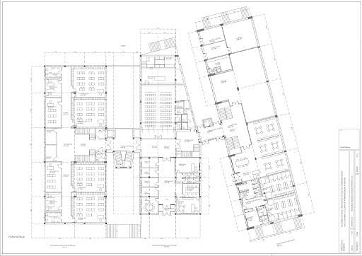
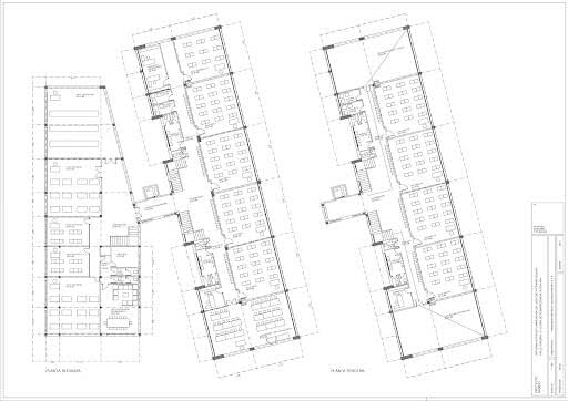
SUPERFICIE: 6.084,15 m2
PROMOTOR: Federación de Entidades Inmobiliarias S.A. FEISA
1 nivel:
Mejorar la relación del colegio con su entorno urbano y natural. El aspecto del colegio desde fuera y la vista del entorno desde el colegio.
El trayecto desde casa al colegio y el regreso a casa es un espacio y un tiempo potencialmente educativo.
Pensar en él como OCASIÓN DIDACTICA: se puede aprender en cualquier clase abierta, con cualquier adulto, con cualquier otro alumno, en cualquier lugar tiempo, aprendiendo cosas distintas.
2 Nivel:
El RECINTO del colegio, la finca exterior como espacio didáctico: aprender de las zonas verdes, de las zonas libres y deportivas.
3 Nivel:
El EDIFICIO debe abandonar su papel tradicional como CONTENEDOR de aulas, para aprovechar todas las oportunidades mediante soluciones imaginativas y didácticas.
Entender el edificio como un LIBRO DE TEXTO TRIDIMENSIONAL.
Convertir los pasillos y las zonas comunes del colegio en CALLE, AGORA EDUCADORA.
4 NIVEL:
EL AULA, la célula didáctica, debe ser revisada y recreada. Menor ratio profesor/ alumno.
Incorporación de modernos formatos pedagógicos, acceso a bases educativas, internet, etc.
Hacer del colegio un espacio de innovación pedagógica, que exprese y facilite la transmisión del ideario deseado.
Un colegio que despierte sentimientos de pertenencia y ayude a crear un proyecto común entre los padres, los profesores y los alumnos.













