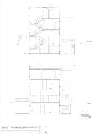
Residencia profesoras colegio Aloya

RESIDENCIA PROFESORAS COLEGIO ALOYA

LUGAR: Calle Couto 2- VIGO

PROYECTO DE EJECUCIÓN: 2009

FECHA DE CONSTRUCCION: 2010

CONTRATISTA: ESMERODE Construcciones

ESTRUCTURAS: José Andújar

SUPERFICIE: 843 m2

PROMOTOR: Obinsa