CENTRO DE EDUCACIÓN PRE-ESCOLAR “KID´S GARDEN”
LUGAR: Urbanización Valaire (A Coruña)
PROYECTO DE EJECUCIÓN: 2003
FECHA DE CONSTRUCCION: 2005
CONTRATISTA: MOUZO Y SOUTO Construcciones
ESTRUCTURAS: José Andújar
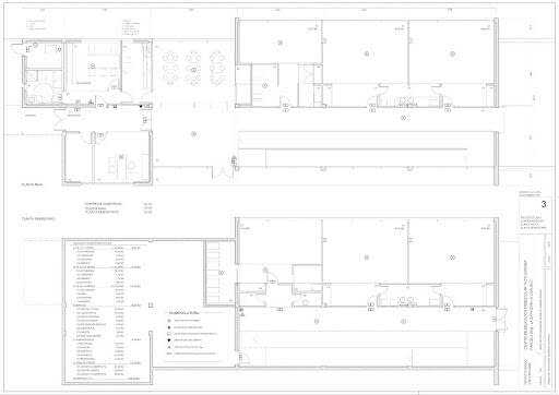
SUPERFICIE: 620 m2
PROMOTOR: Asociación Aprendo Xogando
Toda auténtica arquitectura proviene de dar satisfactoria solución a un problema. En nuestro caso resolver una guardería en una ladera rocosa.
Dimos a oscuras los primeros pasos sin encontrar la solución. Constantemente nos tropezábamos con la forma triangular de la parcela y sobre todo con la doble pendiente de su ladera rocosa. Por fin vimos aparecer la luz. La solución se nos imponía, con la evidencia de lo que «siempre» había estado ahí y finalmente se encuentra.
La ladera debería aterrazarse, convertirse en «socalcos». El edificio se alargaría, se alinearía con el frente de la avenida, sería un edificio-presa, un edificio-borde. Desde la parcela el edificio ofrecería contención, delimitación, seguridad…Desde el exterior sería muro, presa, atalaya, observatorio y escaparate.
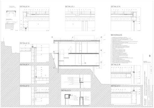
Se propone un edificio esencial, para que el protagonista sea el basamento de roca. Para ello optamos por una caja pétrea horizontal de hormigón, apoyada en la ladera y volada sobre el corte rocoso, que se abre por sus frentes con grandes paños de vidrio para ver el paisaje exterior y el paisaje interior. Una pantalla publicitaria en que se muestran las aulas -los niños siempre venden- un gran televisor hacia la ciudad residencial, un reclamo para los usuarios del centro comercial. Hacia dentro el sosiego del paisaje interior: naturaleza dominada, jardín, areneros, árboles y arbustos, rampas y algunos juegos de madera.









