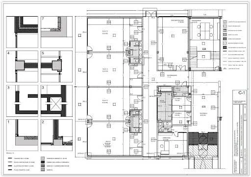
AMPLIACION DE PABELLON EDUCACION INFANTIL COLEGIO “MONTESPIÑO”
LUGAR: calle Montespiño,10
Culleredo (A Coruña)
PROYECTO DE EJECUCIÓN: 2007
FECHA DE CONSTRUCCION: 2008
CONTRATISTA: REBIGAL S.A.
ESTRUCTURAS: José Andújar
SUPERFICIE: 491,60 m2
PROMOTOR: FEISA. Federación de Entidades Inmobiliarias S.A.









