AMPLIACIÓN CENTRO ESCOLAR “ESCUELAS LABACA” PARA CEIP
LUGAR: CALLE JUAN FLOREZ – A Coruña
PROYECTO DE EJECUCIÓN: 1987
FECHA DE CONSTRUCCION: 1990
CONTRATISTA:
ESTRUCTURAS: José Andújar
SUPERFICIE: 2.693 m2
PROMOTOR: Consellería de Educación. Xunta de Galicia
PUBLICACIONES:
Obradoiro nº 16
Actas Congreso Internacional de Arquitectura Institucional. Consello da Cultura Galega
El programa requería ampliar y reformar las escuelas Labaca, edificio modernista de Leoncio Bescansa.
Se opta por un edificio neutro con una geometría sencilla y tersa, que no entre en antagonismo y que sirva de telón de fondo al edificio original.
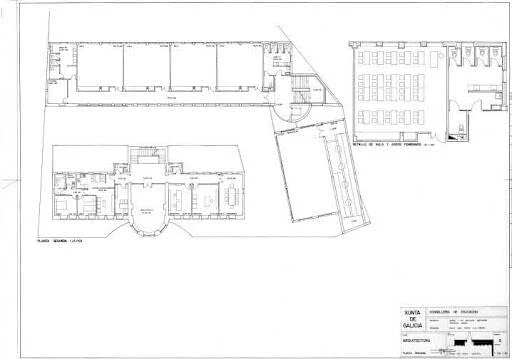
El nuevo edifico se retranquea y se extiende a todo el ancho de la parcela. Se cierra de esta forma la manzana y se crea un segundo cuerpo de menores dimensiones, que situado en la misma alineación que el edificio histórico, armoniza con él en escala y proporción.
Del conjunto de volúmenes planos destaca un elemento cilíndrico -circulaciones verticales- que vertebra los nuevos cuerpos y se relaciona formalmente con la torre modernista.
Todo el edifico se aleja del terreno por una planta diáfana. El escaso espacio libre no se ve reducido por la nueva construcción, que, por contra, conforma así un área de juegos escolares a resguardo de la lluvia.
El acceso se realiza desde esta planta. A continuación se distribuyen las aulas y tutorías, reservando la última planta para gimnasio y vestuarios. Se aprovecha la escarpada orografía de la parcela para tener una salida directa mediante una pasarela en viga de celosía, hacia la pista polideportiva situada en la parte más alta del terreno.
La voluntad de restar importancia al nuevo volumen se materializa en la exclusión del color (sólo se utiliza el blanco, el gris y el negro) en la fábrica y carpintería exterior y en la superposición de una celosía que al cubrir los huecos y machones reduce su protagonismo formal. Como contrapunto, al edifico original se le reservó el empleo del color en consonancia con su preponderancia formal y conceptual.
El espacio más interesante se concentra en la última planta. Se aprovecha todo el ancho del edificio para el gimnasio, que se cubre con cerchas metálicas a un sólo agua, con el cordón superior de directriz curva y tirante quebrado para liberar el espacio destinado a los grandes ventanales que, acristalados con metacrilato, difunden una luz opalina a todo el espacio.








