EDIFICIO DEPARTAMENTOS Y AULA MAGNA FACULTAD DE FILOLOGÍA
LUGAR: Campus da Zapateira UDC (A Coruña)
PROYECTO:
Fernández Madrid e Iglesias Pereira
José Benito Rodríguez Cheda
PROYECTO DE EJECUCIÓN: 1996
FECHA DE CONSTRUCCION: 1998
CONTRATISTA: NECSO
ESTRUCTURAS: José Andújar
SUPERFICIE: 4.646 m2
PROMOTOR: Universidad de A Coruña
Adjudicación del proyecto por concurso público bajo lema
El Proyecto sigue en todo al objeto del Concurso de remodelación y ampliación de la Facultad de Ciencias Económicas y Empresariales, en el Campus de la Zapateira de A Coruña, que consiste en resolver el siguiente programa de necesidades:
– Remodelación de la Planta Baja para ubicar unos accesos priorizados al Edificio y un Hall representativo del mismo.
– Ubicación de una nueva Aula Magna de capacidad al menos para 400 personas.
– Construcción de un Edificio Anejo y comunicado con el de la Facultad existente para situar los locales de 100 profesores en Despachos de 1, 2 ó más personas según propuesta libre del proyectista.
En pocas palabras, se trata de convertir el Aulario en una Facultad.
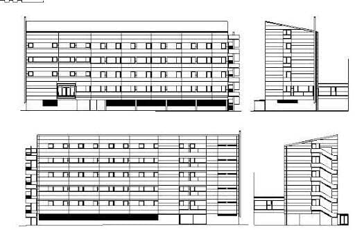
El edificio de Departamentos proyectado renuncia a cualquier diálogo formal con lo construido, si bien, por su neutralidad volumétrica y de color, no desencadena una abierta confrontación con él. Su forma es no beligerante. Respetuosamente separado del aulario, aparece como telón de fondo del edificio de aulas y del aparcamiento, configurando un patio, que en el futuro deberá ordenarse mejor, aliviándolo en gran parte de la presencia masiva de automóviles, si se quiere que funcione adecuadamente.
El Aula Magna pertenece al ámbito funcional de las aulas, más que al de Departamentos. Decidimos, por tanto, situarla en un lugar central respecto del edificio de existente, apoyando sus gradas en la pendiente del talud posterior. Se crea un vestíbulo central de la Facultad, que sirve además de acceso y expansión al Aula Magna. Se remarca así la centralidad del acceso, se polariza la vida académica del centro hacia dicho eje, y se dota de una jerarquía a un espacio docente, que resultaba excesivamente uniforme
Respecto a los accesos la propuesta consiste en jerarquizar de algún modo los
innumerables accesos al edificio y dar continuidad a los porches existentes frente al aparcamiento. Para ello se disponen unas marquesinas, a base de láminas de
hormigón, que unen porche con porche, para darles continuidad. Los dos accesos principales se enfatizan al prolongar esta marquesina hasta las puertas que dan acceso al vestíbulo principal.
Años más tarde, el edificio pasó a ser Facultad de Filología.

















