CENTRO DE SALUD DE TOMIÑO
LUGAR: Tomiño (Pontevedra)
PROYECTO DE EJECUCIÓN: 2005
FECHA DE CONSTRUCCION: 2006
CONTRATISTA: COMSA
ESTRUCTURAS: José Andújar
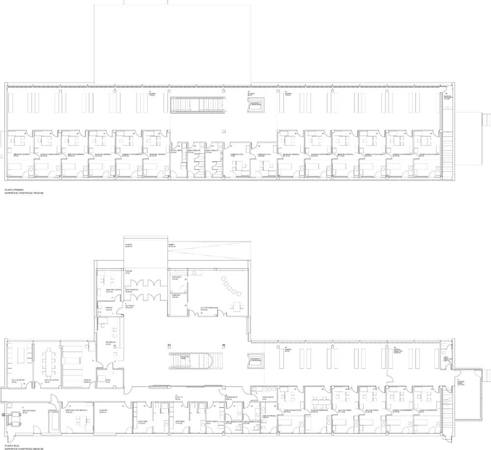
SUPERFICIE: 1.652 m2
PROMOTOR: SERGAS
Adjudicación del proyecto por concurso público bajo lema
Una caja de hormigón, cerrada en cuatro de sus caras y abierta por sus frentes más largos. Un muro cortina cierra el frente de las esperas de arriba abajo, ocultando el forjado intermedio que las separa. A la fachada opuesta abren las consultas, con frente totalmente acristalado, parcialmente cerrado con paneles aislantes y vidrio traslúcido o vidrio trasparente, según la ubicación, y cubierto frontalmente con una celosía de UGLAS que preserva la intimidad de las zonas de reconocimiento.
A esta caja se accede por otra caja de menor altura y dimensión, colocada – ligeramente desplazada – delante de la otra. Es la caja de acceso, en la que se sitúa el vestíbulo general, la recepción, el Asistente social y el Aula sanitaria. Una rampa permite salvar el pequeño desnivel entre la cota de la acera y la del nivel del forjado de planta baja. Este forjado está levantado del suelo dejando una cámara sanitaria entre él y el terreno para evitar el ascenso de la humedad del terreno hacia el edificio.










